
Ulica: | Budovatelská |
---|---|
Obec: | Smolenice |
Okres: | Trnava |
Kraj: | Trnavský kraj |
Druh: | Objekty |
Typ: | Predaj |
Typ objektu: | Hotel, penzión |
Iné: |
Ponúkame Vám na predaj zabehnutý a kompletne vybavený penzión v malebnej obci Smolenice vzdialenej cca 18km od Trnavy. Ide o 22 ročný samostatne stojaci čiastočne podpivničený 3 podlažný dom s garážou situovaný na peknom a slnečnom pozemku o celkovej rozlohe 612m2.
vybavenie a dispozičné riešenie:
- 15 lôžok (možnosť rozšírenia lôžkovej kapacity)
- 5x izba (2 s kúpeľňou)
- 1x apartmán s kuchyňou a vstupom do záhrady
- 4x kúpeľňa (všetky novo zrekonštruované 2024)
- veľká spoločná kuchyňa s jedálňou
- 3x mobilná klimatizácia
- v každej izbe LCD TV, internet a satelitné programy
- parkovanie pre 6 áut (3 pred domom, 2 na pozemku, 1 v garáži)
- slnečná záhrada s altánkom a posedením, detské ihrisko, trampolína, gril a ohnisko na opekanie
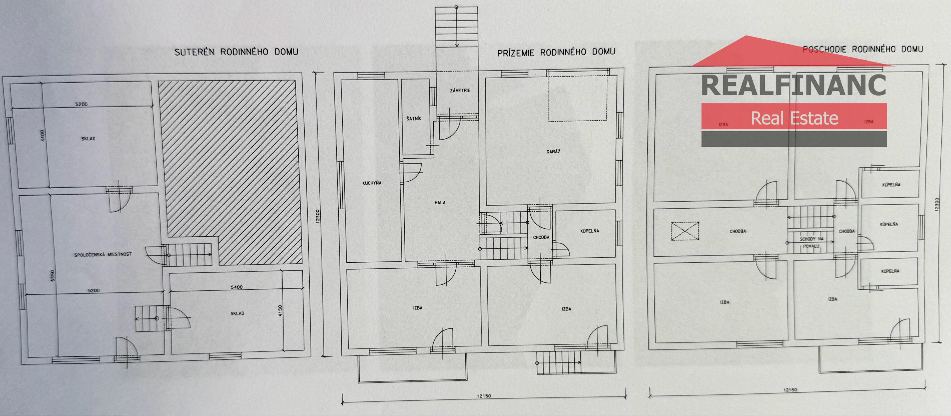
suterén:
- 2x skladové priestory
- veľká spoločenská miestnosť (s kapacitou 20 ľudí) so vstupom do záhrady
- vínna pivnica o rozlohe 12m2
prízemie:
- priestranná garáž s elektrickou bránou na diaľkové ovládanie
- vstupná hala s walk in šatníkom
veľká kuchyňa s jedálenským stolom
- kúpeľňa s WC
- izba s balkónom
- apartmán s kuchyňou
poschodie:
- kúpeľňa s WC
- chodba
- 2x izba s vlastnou kúpeľňou a WC (jedna izba s balkónom)
- 2x izba
technické parametre:
- 22 ročná tehlová stavba
- 150m2 zastavaná plocha, cca 265m2 úžitková plocha
- 15cm zateplenie
- plastové okná so žalúziami
- kúrenie a ohrev vody zabezpečuje plynový kotol a radiátory + k dispozícii 200l elektrický bojler
- možnosť kúriť aj tuhým palivom
- všetky inžinierske siete (obecný vodovod, elektrika, plyn, kanalizácia) + optické pripojenie
Vynikajúca poloha penziónu v centre obce Smolenice zabezpečuje kompletnú občiansku vybavenosť v bezprostrednej blízkosti ako napr.: potraviny, reštaurácie, pizzéria, základná škola s materskou, fitness centrum, detské ihrisko, pošta, lekár, lekáreň, železničná stanica, futbalové ihrisko. Okrem výbornej občianskej vybavenosti je obec Smolenice vyhľadávaná turistická oblasť na úpätí Malých Karpát.
Nehnuteľnosť je možné financovať aj prostedníctvom H.Ú. s ktorého vybavením Vám radi bezplatne pomôžeme.
Možná výmena za 1i-2i-3 izbový byt v Trnave s doplatkom.
Cena: 269.000,-€ vrátane právneho servisu a provízie realitnej kancelárie.
Viac informácii a dohodnutie obhliadky Vám radi poskytneme na tel. čísle: 0905 857 987.